г Новосибирск, Красный пр-кт, д 2/1
Пн-пт с 09:30 до 18:30, Сб-вс выходной

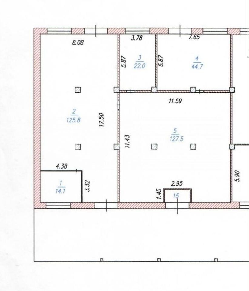
Свободного назначения 338 м² ID: J707

Искитим, улица Базарная, д.1
Площадь 338 м²
Этаж 1 из 1
70 000 / месяц
207 /м²
Заинтересовал объект? Оставьте ваш номер телефона и мы Вам перезвоним Позвонить мне
QR
Ссылка на объект

Описание

Работаем без комиссии. Широкий выбор складов от 50 до 5000 кв.м., звоните!

🔹Адрес: ул. Базарная, д. 1, Искитим, Новосибирская обл.
🔹Инфраструктура: Первая линия. Широкий подъезд к зданию с Линейной. Два входа, погрузка-разгрузка, плюс два дополнительных.

🔺Технические характеристики:
Этаж: 1
Площадь: 338 м²
Электрическая мощность: 70 кВт
Отопление: центральное
Вода: центральное водоснабжение
Пандус: есть
Парковка: есть
Погрузочная и разгрузочная зона: есть

💎Условия:
207 р. за кв.м + коммунальные услуги
Каникулы даются на заезд, обсуждаются индивидуально

Запишитесь на просмотр объекта, просто написав нам на Авито или набрав по телефону.

Не смогли найти подходящий объект? Звоните! Персональный брокер по складской недвижимости проконсультирует и поможет с поиском объекта под ваш запрос.

🔥О нас:
Меня зовут Сабир, я руководитель агентства коммерческой недвижимости Кагарманов. Мы специализируемся на комплексной работе с коммерческой недвижимостью. Поможем вам с поиском складского помещения, ведением переговоров по цене и юридической консультацией по сделке.

❤️Добавьте объявление в избранное, чтобы быть в курсе изменения цены!
Подробнее

Характеристики

  • Тип недвижимости Коммерческая
  • Населенный пункт Искитим
  • Адрес улица Базарная, д.1
  • Стоимость заМесяц
  • Общая площадь 338 м²
  • Вид объекта Помещение свободного назначения
  • Этаж 1
  • Этажность дома 1
  • Право собственности Собственник
  • Отделка помещения Без отделки
  • Тип аренды Прямая
  • Вход С улицы
  • Отопление Центральное
  • Тип здания Другой
  • Мощности 70
Задать вопрос


Вас также может заинтересовать:
14
Аренда склада 500 м²
Искитим, улица Киевская, д.1г

60 000 / сутки
  • Вид объекта:Складское помещение
  • Этаж:1
  • Этажность дома:1

Мы используем файлы cookie, чтобы обеспечить вам наилучший доступ к нашему веб-сайту

Скопировано