г Новосибирск, Красный пр-кт, д 2/1
Пн-пт с 09:30 до 18:30, Сб-вс выходной

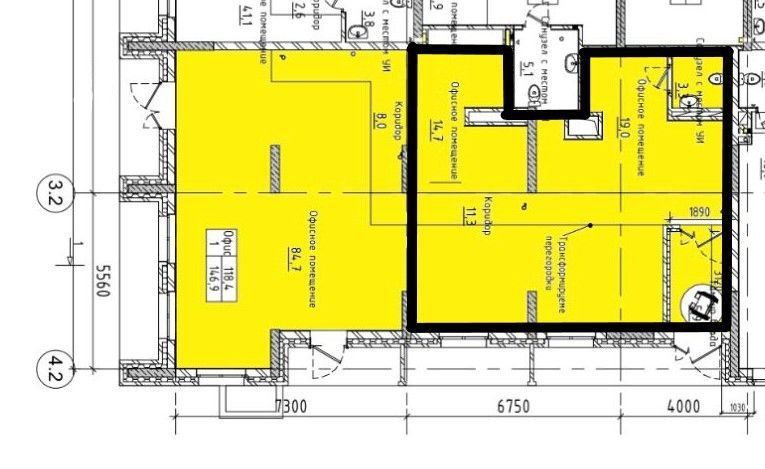
Свободного назначения 70 м² ID: J237

Новосибирск, Заельцовский, улица Аэропорт, д.49/1 Заельцовская Ленинская 11061 мин.
Площадь 70 м²
Этаж 1 из 20
105 000 / месяц
1 500 /м²
Сабир Кагарманов Сабир Кагарманов
Руководитель агентства
+7(983)320-7495
QR
Ссылка на объект

Описание

Работаем без комиссии. Широкий выбор помещений от 10 до 2500 кв.м., звоните!

🔹 Адрес: ул. Аэропорт, д. 49/1
🔹 Инфраструктура:
Внутри жилого массива. В 5 минутах от автобусной остановки Сибирский Кадетский Корпус. Основной поток составляют местные жители. В радиусе 500 метров проживает более 4 000 человек. Соседние арендаторы: пункт выдачи заказов Ozon, Wildberries. Есть парковочные места.

🔺 Технические характеристики:
Этаж: 1
Площадь: 70 м²
Высота потолков: 4 м
Вход: отдельный
Энергообеспечение: 40 кВт
Отопление: центральное
Вода: холодная есть
Возможность установить вытяжку: есть
Сан.узел: можно сделать

💎 Условия:
105 000 руб./мес. (1 500 руб./м²) + коммунальные услуги
Каникулы даются на заезд, обсуждаются индивидуально.
Без комиссии.

Запишитесь на просмотр объекта, просто написав нам на Авито или набрав по телефону.

🔥 О нас:
Меня зовут Сабир, я руководитель агентства коммерческой недвижимости Кагарманов. Мы специализируемся на комплексной работе с коммерческой недвижимостью. Поможем вам с поиском торгового помещения, ведением переговоров по цене и юридической консультацией по сделке.

❤️ Добавьте объявление в избранное, чтобы быть в курсе изменения цены!
Подробнее

Характеристики

  • Тип недвижимости Коммерческая
  • Населенный пункт Новосибирск
  • Район Заельцовский
  • Адрес улица Аэропорт, д.49/1
  • Станция метро Заельцовская ( 11061 мин.)
  • Стоимость заМесяц
  • Общая площадь 70 м²
  • Вид объекта Помещение свободного назначения
  • Этаж 1
  • Этажность дома 20
  • Право собственности Собственник
  • Отделка помещения Без отделки
  • Тип аренды Прямая
  • Вход С улицы
  • Отопление Центральное
  • Тип здания Жилой дом
  • Парковка На улице
  • Тип планировки Открытая
Задать вопрос


Вас также может заинтересовать:
14
Аренда на Никитина, 73 м²
Новосибирск, улица Никитина, д.11
Октябрьский
109 500 / месяц
  • Вид объекта:Помещение свободного назначения
  • Этаж:1
  • Этажность дома:5
10
Аренда на Декабристов, 125 м²
Новосибирск, улица Декабристов, д.115
Октябрьский
Речной вокзал
115 000 / месяц
  • Вид объекта:Помещение свободного назначения
  • Этаж:1
  • Этажность дома:5
6
Аренда в цоколе, 84 м²
Новосибирск, улица Зорге, д.133/2
Кировский
84 000 / месяц
  • Вид объекта:Помещение свободного назначения
  • Этажность дома:3

Мы используем файлы cookie, чтобы обеспечить вам наилучший доступ к нашему веб-сайту

Скопировано