г Новосибирск, Красный пр-кт, д 2/1
Пн-пт с 09:30 до 18:30, Сб-вс выходной

Аренда под склад, 1420 м² ID: J1669

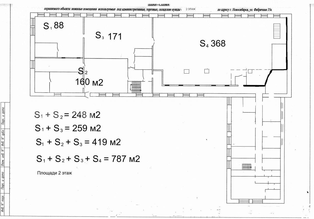
Новосибирск, улица Фабричная, д.35А
Площадь 1420 м²
Этаж 1 из 2
923 000 / месяц
650 /м²
Георгий Домнин Георгий Домнин
Старший Брокер по аренде и продаже коммерческой недвижимости
+7(913)769-0907
QR
Ссылка на объект

Описание

Аренда от собственника! Комиссии для арендатора нет!

Этаж: 1,2
Площадь: 1420 м² (1018- склад, 419- офисы)
Вход: отдельный
Электрическая мощность: 160 кВт
Отопление: центральное
Вода: есть
Сан.узел: есть
Парковка: есть
Охрана: есть (круглосуточная)
Разгрузка: есть отдельный вход для разгрузки
Доступ: круглосуточный

Стоимость аренды: 923 000 р. + коммунальные услуги

Чтобы получить ПОДРОБНУЮ ИНФОРМАЦИЮ И ПЛАНИРОВКУ С ВИДЕО, звоните или отправьте номер телефона в сообщение на портале. Отвечаем в течении рабочего дня!

Характеристики

  • Тип недвижимости Коммерческая
  • Населенный пункт Новосибирск
  • Адрес улица Фабричная, д.35А
  • Стоимость заМесяц
  • Общая площадь 1420 м²
  • Вид объекта Складское помещение
  • Этаж 1
  • Этажность дома 2
  • Право собственности Собственник
  • Отделка помещения Без отделки
  • Тип аренды Прямая
  • Вход С улицы
  • Отопление Центральное
  • Тип здания Административное здание
  • Парковка На улице
  • Мощности 160
  • Тип планировки Открытая
  • Берег Правый
  • Помещение сдано нет
Задать вопрос


Вас также может заинтересовать:
17
1119 м² офисное помещение
Новосибирск, улица Калинина, д.57
Заельцовский
951 150 / месяц
  • Вид объекта:Офисное помещение
  • Этаж:2
  • Этажность дома:2
6
Аренда под склад, 1350 м²
Новосибирск, улица Чукотская, д.2
Кировский
742 500 / месяц
  • Вид объекта:Помещение свободного назначения
  • Этаж:1
  • Этажность дома:1
16
Свободного назначения, 981 м²
Новосибирск, улица Лебедевского, д.1а
Заельцовский
784 800 / месяц
  • Вид объекта:Помещение свободного назначения
  • Этаж:3
  • Этажность дома:3

Мы используем файлы cookie, чтобы обеспечить вам наилучший доступ к нашему веб-сайту

Скопировано