г Новосибирск, Красный пр-кт, д 2/1
Пн-пт с 09:30 до 18:30, Сб-вс выходной

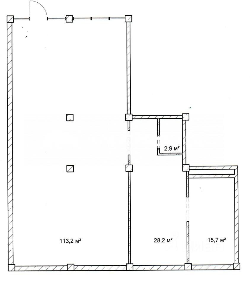
Аренда на Военной, 160м² ID: J1064

Новосибирск, Октябрьский, улица Военная, д.9/1
Площадь 160 м²
Этаж 1 из 9
240 000 / месяц
1 500 /м²
Сабир Кагарманов Сабир Кагарманов
Руководитель агентства
+7(983)320-7495
QR
Ссылка на объект

Описание

Аренда от собственника! Комисси для арендатора нет!

Этаж: 1
Площадь: 160м²
Вход: отдельный
Отопление: центральное
Вода: есть
Сан.узел: есть
Вытяжка: можно сделать

Стоимость аренды: 240 000 р. + коммунальные услуги

Чтобы получить ПОДРОБНУЮ ИНФОРМАЦИЮ И ПЛАНИРОВКУ С ВИДЕО, звоните или отправьте номер телефона в сообщение на портале. Отвечаем в течении рабочего дня!

Характеристики

  • Тип недвижимости Коммерческая
  • Населенный пункт Новосибирск
  • Район Октябрьский
  • Адрес улица Военная, д.9/1
  • Стоимость заМесяц
  • Общая площадь 160 м²
  • Вид объекта Помещение свободного назначения
  • Этаж 1
  • Этажность дома 9
  • Право собственности Собственник
  • Отделка помещения Офисная
  • Тип аренды Прямая
  • Вход С улицы
  • Отопление Центральное
  • Тип здания Жилой дом
  • Парковка На улице
  • Тип планировки Открытая
Задать вопрос


Вас также может заинтересовать:
16
Аренда на первой линии, 229 м²
Новосибирск, улица Петухова, д.12/2
Кировский
286 250 / месяц
  • Вид объекта:Помещение свободного назначения
  • Этаж:1
  • Этажность дома:5
19
Аренда под офис, 292,5 м²
Новосибирск, улица Костычева, д.40/2
Ленинский
Площадь Маркса
292 500 / месяц
  • Вид объекта:Офисное помещение
  • Этаж:4
  • Этажность дома:4
20
10 минут от метро с ремонтом, 269м²
Новосибирск, улица Восход, д.26/1
Октябрьский
255 819 / месяц
  • Вид объекта:Помещение свободного назначения
  • Этаж:1
  • Этажность дома:9

Мы используем файлы cookie, чтобы обеспечить вам наилучший доступ к нашему веб-сайту

Скопировано